E. Fuel Pump Relay
Functional descriptionMechanically controlled gasoline injection system with air flow sensor (abbreviated designation CIS)
E. Fuel pump relay
The fuel pump relay for voltage supply of fuel pump has three, respectively four functions:
1. Activation of fuel pump when starting or with engine running.
The warm-up compensator is also activated in parallel with fuel pump.
2. Rpm limitation after attaining max. engine speed.
3. Switching-off of fuel pump as soon as no more impulses are arriving via terminal TD of switching unit.
TD = Transistor speed signal.
4. Kickdown shutoff.
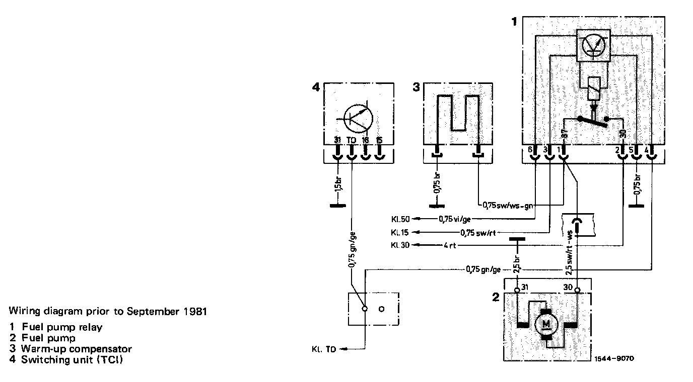
Prior To September 1981:

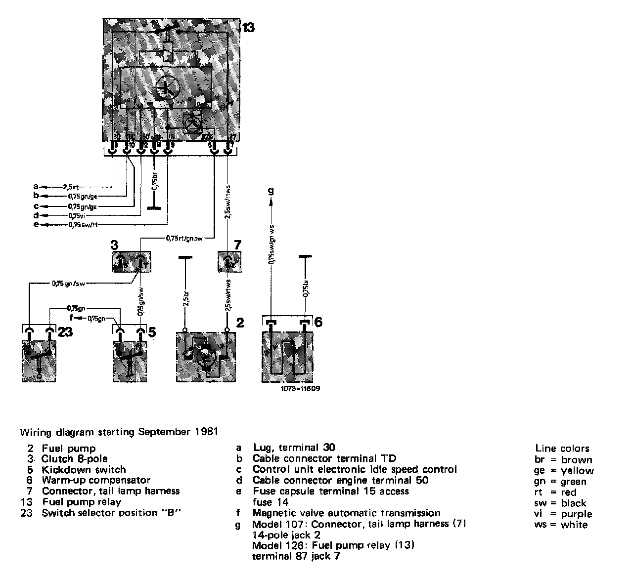
Starting September 1981:

1. Activation of fuel pump when starting and with engine running
When starting, the fuel pump relay is activated via terminal 50 and with the engine running via terminal TD of ignition switching unit.
While starting, the fuel pump relay is activated via terminal 50, because the respective parallel activation of fuel pump relay via terminal TD at engine speeds below approx. 80/min is not enough. The impulse sequence of terminal TD is too low to keep contacts 30-87 in pump relay constantly closed.
At speeds above approx. 80/m in, the frequency of the impulses is high enough to keep contacts 30-87 in fuel pump relay constantly closed.
The warm-up compensator is also activated in parallel with fuel pump.
2. Rpm limitation after attaining max. engine speed
When a given impulse sequence in accordance with max. engine speed is attained, the contacts 30-87 for fuel pump are interrupted. The fuel pump is deenergized, and switches off.
Owing to the electronic rpm control, the rpm control on distributor rotor may be discarded. On engines 116.961, 117,961 the rpm control on distributor rotor is temporarily maintained, because the ignition distributors are identical with those of gray iron engines 116,117.
3. Switching-off of fuel pump as soon as no more impulses are transmitted via terminal TD of switching unit
One second after the last impulse from terminal TD, the contacts 30-87 in fuel pump relay are interrupted as a safety measure. Pump is deenergized and switches off.
4. Kickdown shutoff
During acceleration at kickdown the magnetic valve is energized by kickdown switch (5).
The activation of the magnetic valve of kickdown switch (5) is routed via fuel pump relay with kickdown shutoff (13).
200/min prior to breakaway speed of engine, the fuel pump relay (13) interrupts the current supply to magnetic valve and the transmission will shift to next gear step.
This will make sure that the shifting proceeds prior to attaining breakaway speed.